Ermeni Vakfı Bina Rölöveleri : Kilise | Okul | Yönetim Binası

Atölye Kolektif - Ermeni Vakfı Bina Rölöveleri : Kilise | Okul | Yönetim Binası

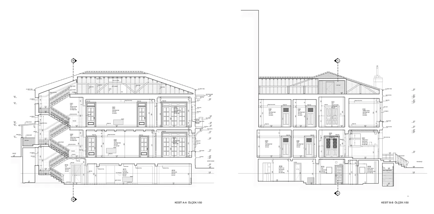
Halaskargazi Caddesi üzerinde konumlanan Pangaltı Ermeni Katolik Mıhitaryan Manastır ve Mektebi Vakfı binaları 19.yy ortalarına tarihlenmektedir. Okul binası, mimar Kegham Kavafyan tarafından 1917 yılında hazırlanan projeye göre yenilenmiştir.

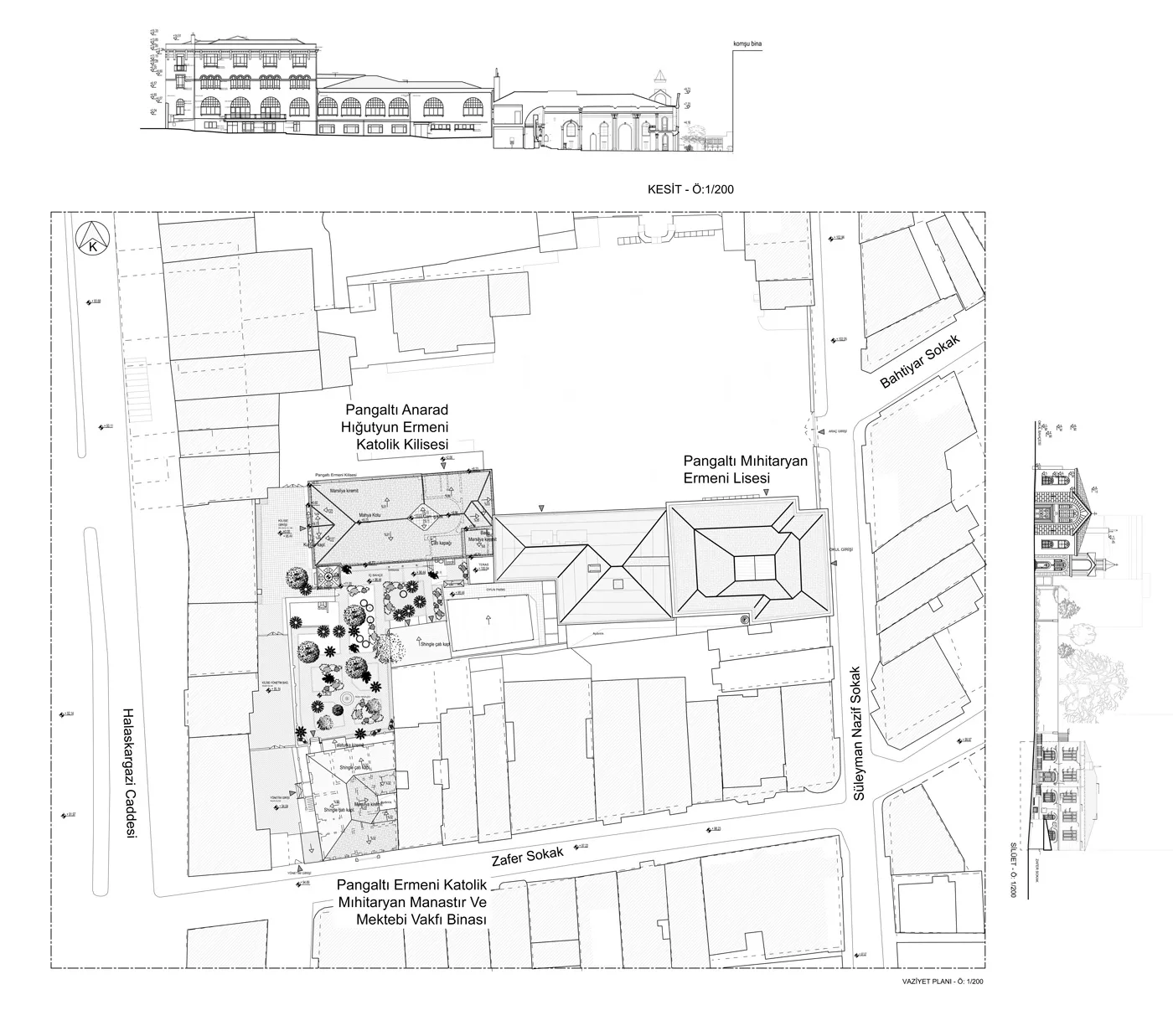
Pangaltı Ermeni Lisesi, Şişli ilçesinde, Harbiye’de, Süleyman Nazif Sokağı’nda yer alır. Yönetim binası Zafer Sokak üzerindedir. Yönetim yapısı olarak kullanılan kagir binanın arkasındaki kilise ile bağlantısı hem içeriden hem yan bahçe devamındaki demir kapı ile sağlanmaktadır.

Okul, Mıhitarist Manastırı rahipleri tarafından kurulmuş olduğundan Ermeniler arasında Mıhıteryan Lisesi adıyla da bilinir. Mıhitaristler tarafından ilk kez 1811’de Kandilli ‘de bir yaz okulu açılmıştır. Bu okulun devamı olarak aynı yıl Beyoğlu’nda da açılan okul ise maddi imkansızlıklar yüzünden 1816 da kapanmıştır. Eğitim sorunuyla ciddi olarak ilgilenen Mıhitarist rahipleri, cemaatin kaliteli eğitim kuruluşlarına gereksinimi olduğunu görerek Beyoğlu’nda uygun bir bina bulmuş ve 1825’te okulu tekrar açılmışlardır.  Beyoğlu’nda manastıra ait bir arsada inşa edilen okul 1839’da tümüyle yanmıştır. Bu kez okul ve manastır gene Beyoğlu’nda 1847’de Yenimahalle Sokağı’nda kagir olarak inşa edilmiştir. Cemaatten gelen istek üzerine okulun yatılı bir bölümü de 1857’de Beyoğlu’nda mektep Sokağı’nda öğretime açılmıştır. Sürekli bina sorunu olan okul, 1866 da Pangaltı’da Kalpakçıyanlara ait geniş arazisi olan bir binaya taşınır.

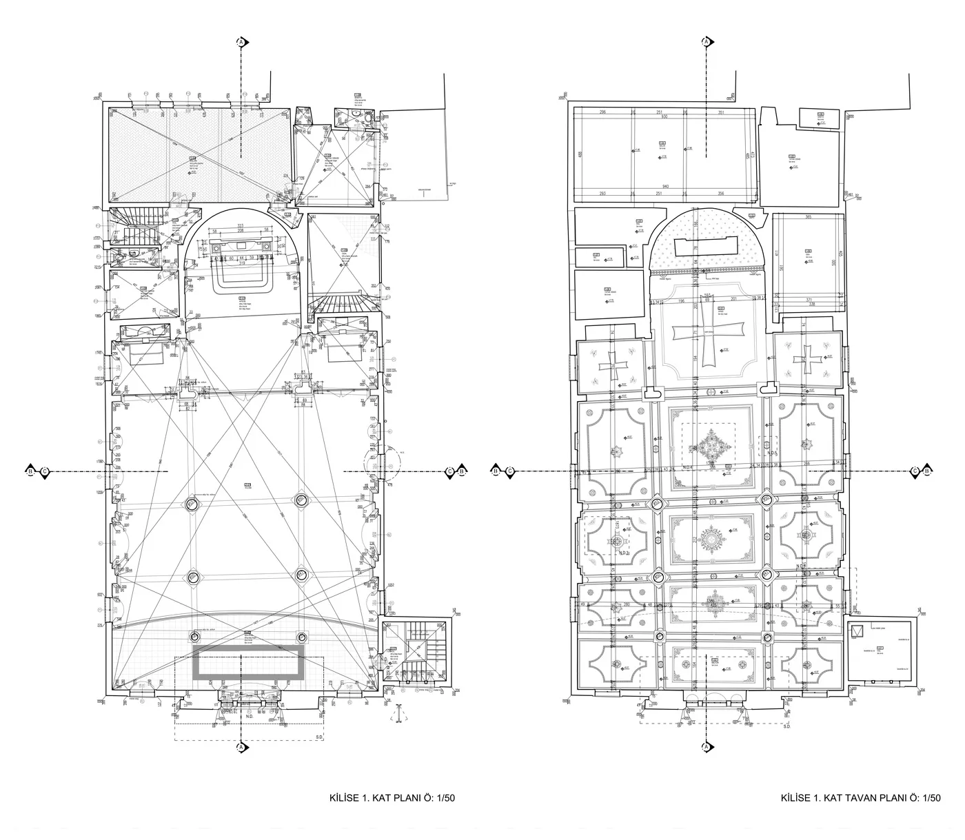
Pangaltı'nda yer alan kilise, 1866'da, dönem itibariyle şehir merkezinden uzak, sadece rahiplerin yararlanması amacıyla küçük, ahşap bir yapı olarak inşa edilmiş ve ibadete açılmıştır. Viyana Mıhitaryan Birliği rahipleri tarafından yönetilmektedir. 1974'te onarımdan geçen kilise binası halen faaldir.

1877-1878 Osmanlı-Rus Savaşı’nda manastır borçlanmış, okul kapanmıştır. Savaşın olumsuz etkileri hafifleyince, cemaatin ve okulun eski mezunlarının arzusuyla 1884’te yeniden açılmıştır.

Binanın oldukça geniş olan arazisi üzerine, okul, manastır ve şapel dışında, kira getirmesi amacıyla, 1890’da sokak boyunca dükkanlar yapılmış, eskimiş okul binası yenilenip genişletilmiştir.

1924-1925 öğretim yılında okul, Maarif Vekaleti’nce resmen tanınmıştır. Eğitim programı resmi okullara resmi okullara eşdeğer olarak yürütülmeye başlanmış, iyice eskiyen okul ve manastır, mimar Keğam Kavafyan ’ın çizdiği projeye göre 1927’de yeniden inşa edilmiştir. 1928’de lise kısmı,1932-33 öğretim yılında bir de ana sınıfı açılmıştır. Öğrenci sayısındaki artış sebebi ile 1936’da okula bir kat daha çıkılmıştır.