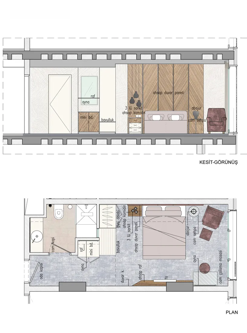
Hampton by Hilton

Atölye Kolektif - Hampton by Hilton

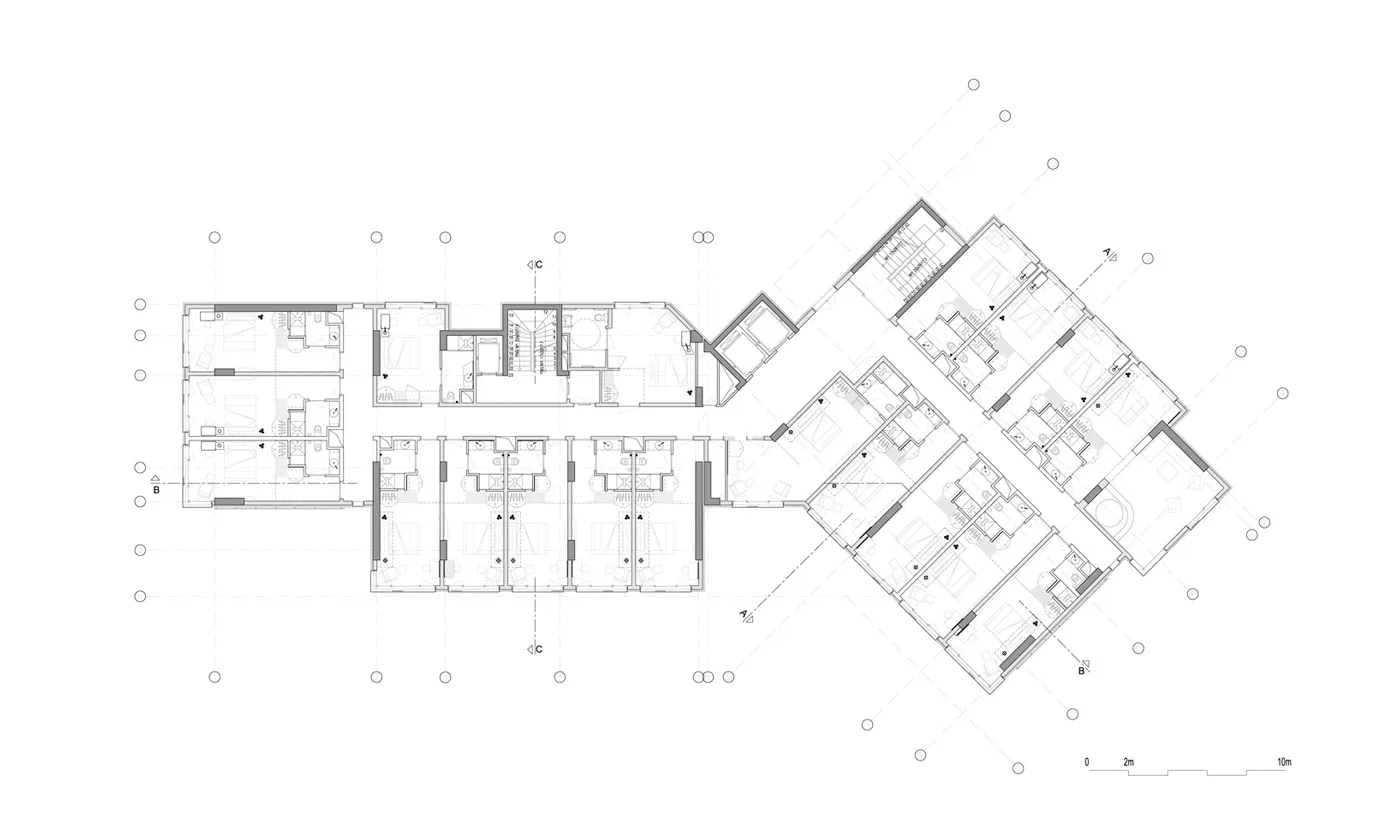
Hampton Hotel, Çanakkale Boğazı girişinde, Hamzaköy-Gelibolu'da konumlanmaktadır. Daha önce yine aynı yerde bulunan ve statik analizler sonucu yıkım kararı alınan eski otel binasının yerine uygulanmıştır. Kent hafızasında önemli bir yere sahip olan önceki binanın yeniden yapımı aşamasında, kontur-gabari hatlarının korunması şartı getirilmiştir. Yeni binanın projelendirme süreci günümüz otel normlarına uygun bir anlayışla gerçekleştirilmiş, planimetri ve cephe uyumunun sağlanması hedeflenmiştir.