Olimbera

Atölye Kolektif - Olimbera

Olimbera, keşfetme temeline dayalı açık hava eğitimlerinin yanı sıra bir permakültür alanı olarak da kullanılan proje sahası içinde, her iki fonksiyona da cevap verebilecek bir yapıya ihtiyaç duyulması sonucu tasarlanmıştır. 2008 yılında yine Atölye Kolektif tarafından aynı arsa içinde projelendirilen “dağ evi” nin devamı niteliğinde bir anlayışla, içinde bulunulan doğa parçasına minimum müdahale etme esasına dayanır.

Proje alanı Kocaeli ilinin güneyinde, Başiskele ilçesi, Kirazpınarı mevkiinde yer almaktadır. Kuzey-güney doğrultusunda yaklaşık 30 m. kot farkı bulunan arsa yaklaşık 28.000 m2 büyüklüğündedir.

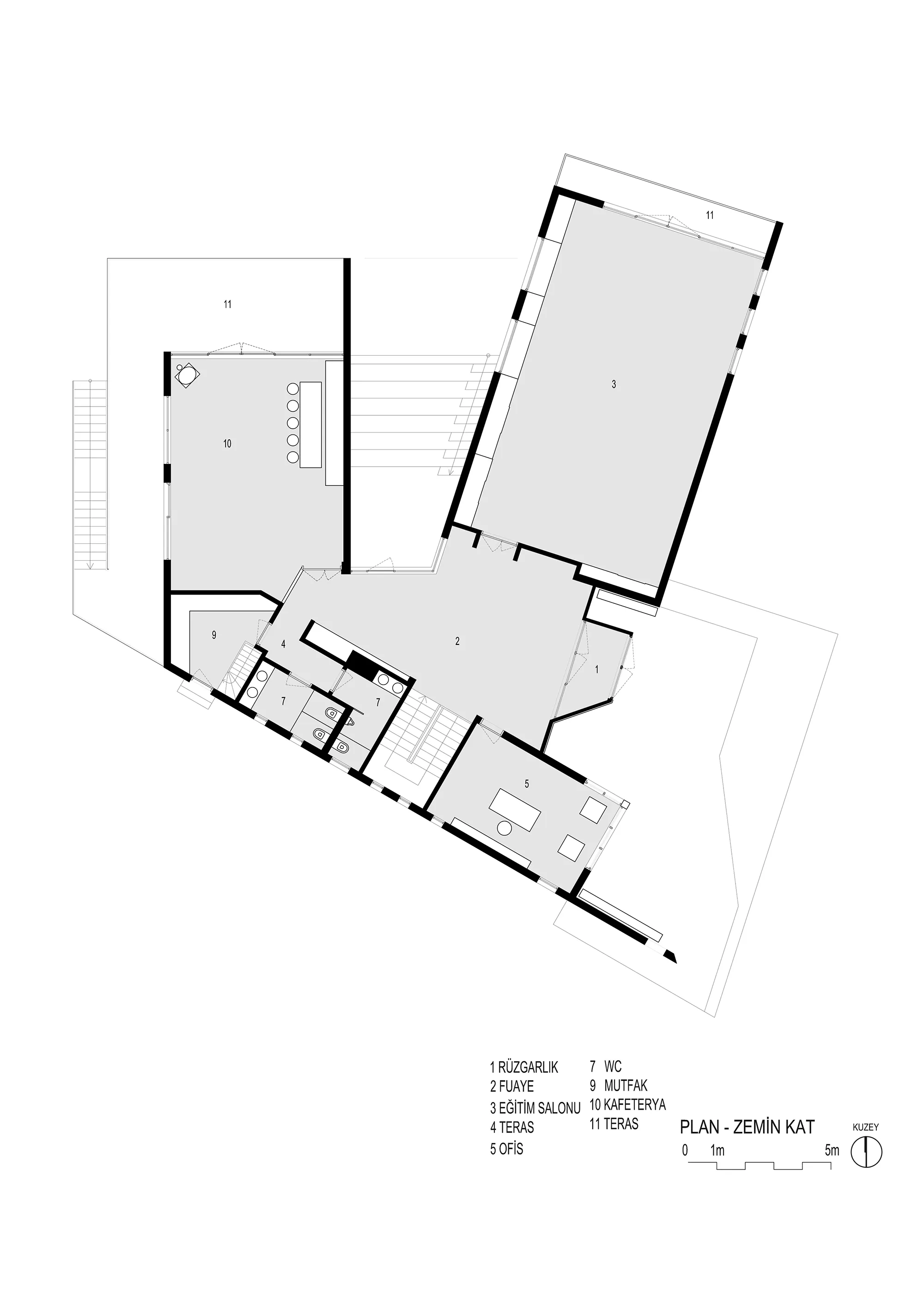
Yapı, arsanın üst kotlarında panoramik manzaraya hakim bir noktada konumlandırılmıştır. Doğal peyzaja uzanarak yakın çevre ile maksimum etkileşim içinde olması amaçlanmıştır. Yapıya yaya yaklaşımı ahşap lavanta kurutma hacimlerinin tanımladığı yürüme-dinlenme hattından sağlanmıştır. Böylece giriş hattı fiziksel bir ize ek olarak koku unsuru kullanılarak pekiştirilmiştir. Topografyanın hareketine eşlik ederek kısmen zeminden kopan yapı, açık amfi ve teraslar ile zemine tekrar bağlanır. Bu durum hem farklı kotlardan erişimi mümkün kılar hem de kullanıcılara yapının dış çeperlerinde farklı deneyim imkanları sunar.

Plan kurgusunun temel belirleyicileri çevresel, iklimsel veriler ile manzara faktörüdür. Programın ana mekanları manzaraya doğru yelpazelenerek açılır ve kullanıcılara farklı panoramalar sunar. Gün ışığı kullanımı hem manzara yönlerine doğru açılan ana cephe boşlukları, hem de çatı pencereleri ile üst seviyeye çıkarılmıştır.

Hakim rüzgar yönü olan güney cephesine servis birimlerinin konumlandırılmasıyla sert geçen kış aylarındaki olumsuzlukların binaya etkisinin azaltılması hedeflenmiştir. Taşıyıcı sistemin ana strüktürel malzemesi olarak çelik tercih edilmiştir. Hem içinde bulunulan doğal çevre şartlarına adapte olabilmek, hem de ileride yapı programı gereği doğabilecek yeni ihtiyaçlara cevap verebilmek adına böyle bir tercihte bulunulmuştur.