Mutlu Dişler

Atölye Kolektif - Mutlu Dişler

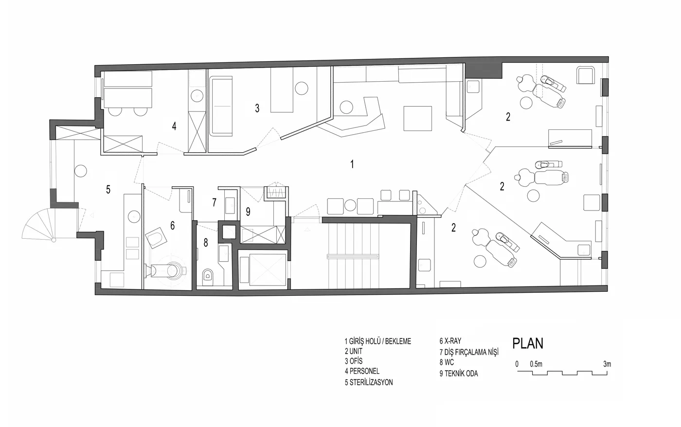
Mutlu Dişler, hastaların kendilerini kısa bir süre içinde rahat hissedebilecekleri, tedirginliklerini kolayca atarak güven duyabilecekleri sıcak bir ortam yaratmak anlayışı ile ele alınmıştır. Fonksiyonel açıdan optimum koşulları sağlayan, estetik bakımdan kurumsal yapıya uygun bir diş kliniği olması amaçlanmıştır.

 

Mevcut mekanın gün boyu kesintisiz bir şekilde ışık alıyor olması ve yeşil alana açılması, istenen rahatlatıcı ortamın oluşmasında önemli bir rol oynamıştır. Dar cepheli ve derin bir hacimde doğal ışığın etkin biçimde nasıl kullanılabileceği ve görsel bir imge olarak ağaçların mekana nasıl katkı sağlayabileceği sorularından yola çıkarak plan alternatifleri geliştirilmiştir. Klinikteki tüm birimleri, özellikle ünitlerin tamamını doğal ışık ile buluşturma fikri tasarıma yön veren önemli kriterlerdendir. Bu düşünce doğrultusunda ünitlerin tümü açısal planlı opak bir cam prizma içine alınarak doğal ışığın giriş holüne kadar etkimesi sağlanmıştır. Muayene koltukları ağaçlara doğru yönlendirilerek stresli tedavi süreçlerinin daha rahat geçirilen deneyimlere/zamanlara dönüştürülmesi hedeflenmiştir. Fiziki verileri tasarımın bileşenleri haline getirmenin yanı sıra doğal etkiye sahip malzemeler ve sıcak renkler kullanılarak samimi ve güven verici iç mekan etkisi güçlendirilmiştir.