Parodia Coffeehouse & Bistro

Atölye Kolektif - Parodia Coffeehouse & Bistro

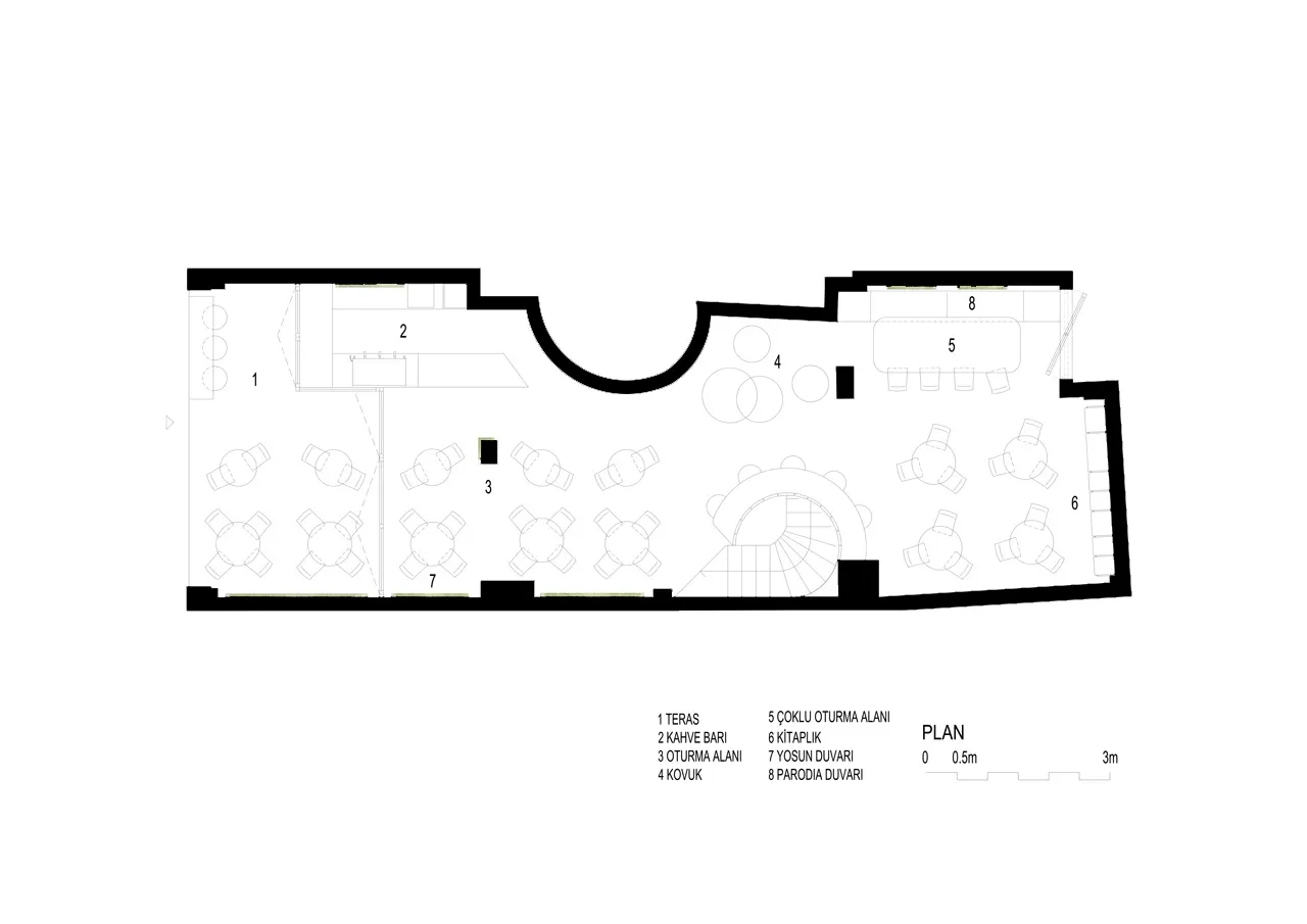
“Parodia” 3.nesil kahvecilik yapılması düşünülmüş bir kafe olarak Ihlamurdere Caddesi/Beşiktaş üzerinde konumlanır. Son yıllarda hem fonksiyon hem de tasarım dili olarak benzerlikler gösteren mekanların giderek yoğunlaştığı Köyiçi Bölgesi’nde, doğallığı esas alan iç mekan kurgusu ile ayrışması hedeflenmiştir. Mekanın kişiye ferah bir ortam sunması, yalın/dingin bir atmosfere sahip olması  belirleyici tasarım kriteri olmuştur. Yapısal elemanların düzensiz yerleşiminden kaynaklı mevcut parçalı mekan; ışık, doku, renk ve malzeme süreklilikleri sağlanarak bütüncül bir hacim haline dönüştürülmüştür.

 

Beyazın hakim kılındığı ana mekanda ahşap ve doğal taş temel malzemeler olarak seçilmiş, bu malzemelerin türev kullanımlarıyla farklı işlevlere dair çözümler üretilmiştir. Kurumsal renk olan “yeşil” sadece malzeme kullanımı yolu ile değil; yoğun parodia ve yosun yerleştirmeleri yapılarak mekana yayılmıştır. Ahşap yünü akustik paneller fonksiyonelliğin yanı sıra mekan içindeki doğal doku sürekliliğini pekiştirici biçimde kullanılmıştır.