Pilav Point

Atölye Kolektif - Pilav Point

Konum itibariyle İstanbul ölçeğini aşan bir noktada –Taksim Meydanı- yer alan mekan, yerelden uluslararasına varan bir düşünsel süreç içinde değerlendirilmiştir. Geleneksel bir sokak yiyeceği olan pilavın farklı kültürlerde de kendine karşılık buluyor olması dolayısıyla, evrensel dilde tasarlanmış bir mekan arayışı tasarıma yön vermiştir. 

 

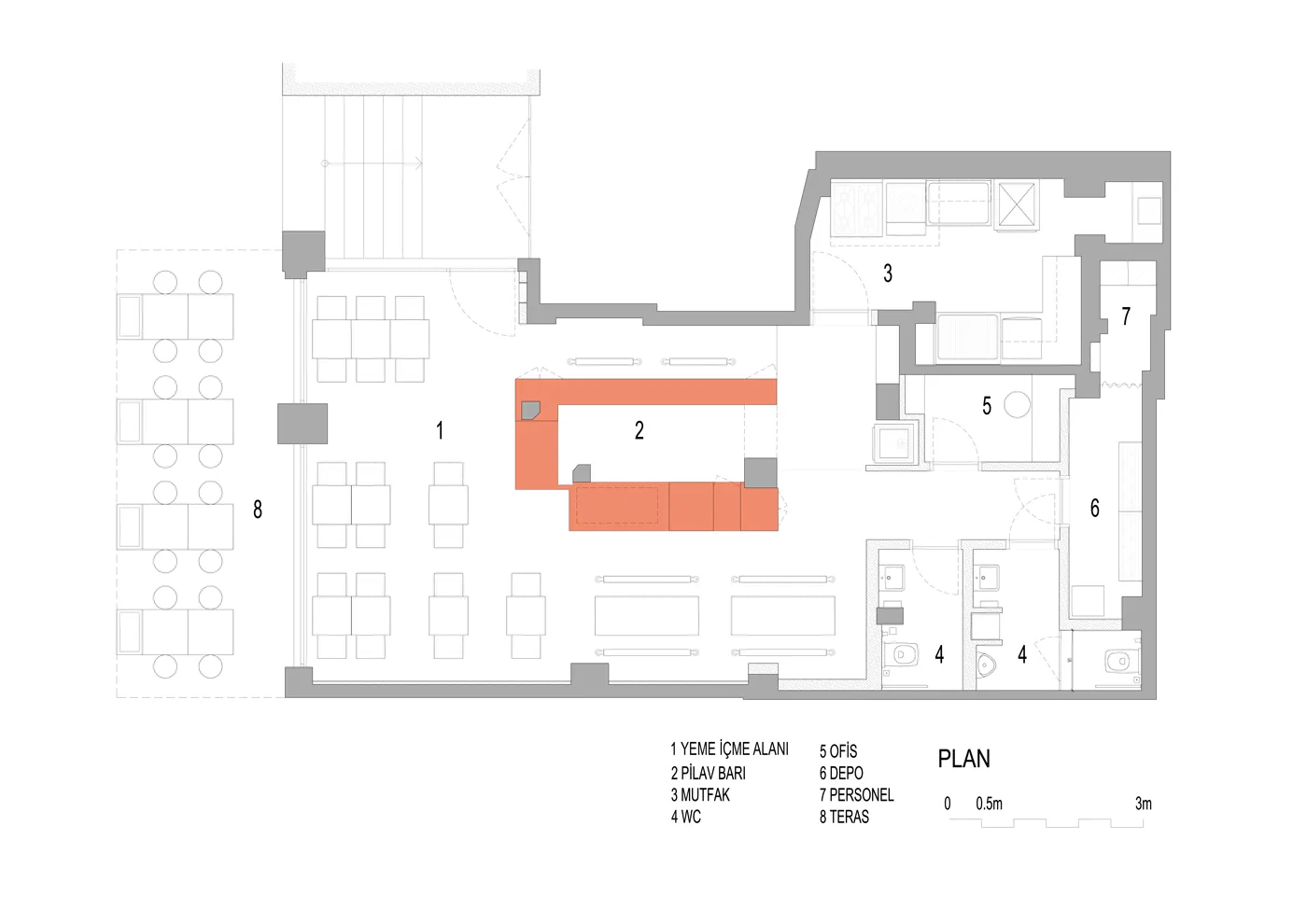
Mevcut mekanın parçalanmışlığına karşın; öncelikle homojen bir hacim yaratılarak bütüncül bir mekan algısının oluşması amaçlanmıştır. Bunun için ana hacimi oluşturan yüzeylerde yakın renk tonlarında farklı malzemeler kullanılmış, ip tavan gibi özel imalatlarla doku çeşitliliği sağlanmıştır. Taşıyıcı sistemin yoğun olduğu bölümde bir  “pilav barı” oluşturularak alan kullanımı rahatlatılmış ve fonksiyon dağılımı tanımlı bir şekilde çözümlenmiştir. “Pilav barı” servis, yeme-içme, teşhir, soğutma sistemi, depolama fonksiyonları ile donatılarak aynı zamanda kurumsal yapıdaki “point” kavramını da karşılayan merkez rolünü üstlenmiştir.