Otama Kırkpınar

Atölye Kolektif - Otama Kırkpınar

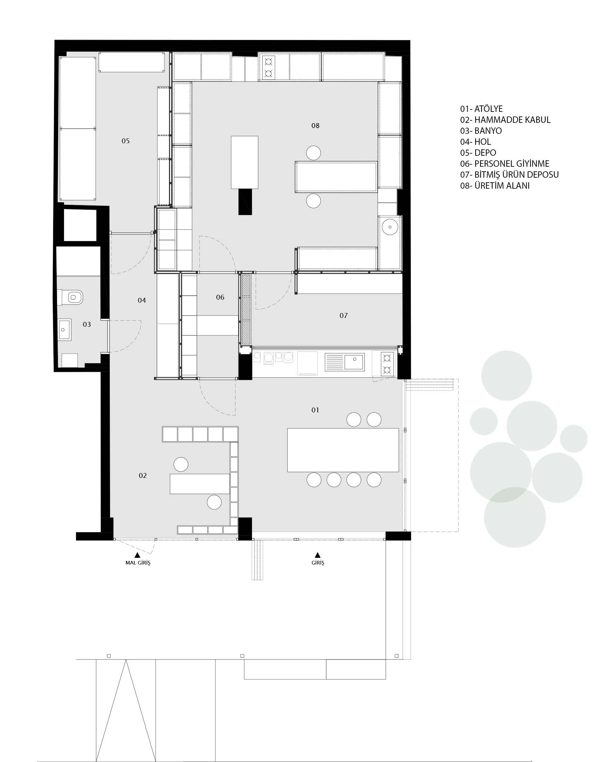
Ekolojik, adil ve geri dönüşüm temelli bir üretim manifestosuna sahip Otama Kırkpınar, paylaşım ve dayanışmanın ön planda olduğu sürdürülebilir kozmetik ürünleri atölyesi olarak tasarlanmıştır. Proje kapsamında döngüsel üretim modeli ile karbon el izine örnek teşkil eden Otama Kırkpınar’ın söz konusu anlayışının fiziksel ortama yansıtılması ve yerelde konumlanan aktivist bir çevre hareketinin mekanı olabilmesi amaçlanmıştır.

Tasarım aşaması geri beslemeli bir sistem kurgusu çerçevesinde ele alınmış; böylece sadece somut üretimlerin gerçekleştirildiği değil, aynı zamanda bu üretimlerin düşünsel altyapısının tartışılabildiği bölümler mekan içinde oluşturulmuştur. Giriş bölümü mahalleli ve aynı coğrafyada bulunan küçük üreticilerin bir araya gelebileceği, birlikte üretip paylaşım yapabilecekleri bir fikir atölyesi iken; arka bölüm Good Manufacturing Practices (GMP - İyi Üretim Uygulamaları) normlarını karşılayabilen bir laboratuvar ve bağlı olduğu hammadde, bitmiş ürün depoları, paketleme alanı işlevlerinin senkronizasyonu ile oluşturulmuş bir üretim mekanıdır.