Kemaliye Müzesi

Atölye Kolektif - Kemaliye Müzesi

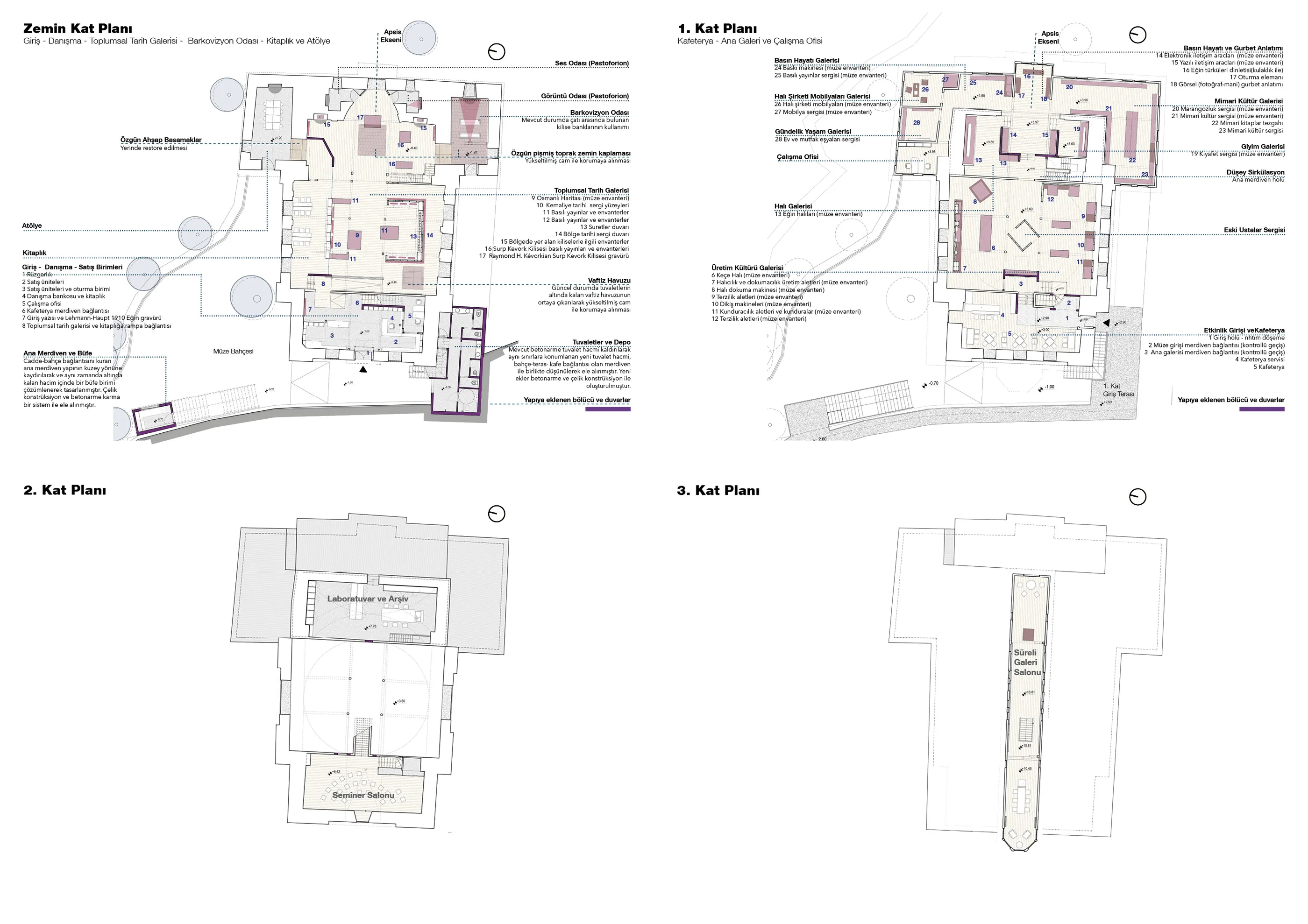
Özgün bir yerleşim dokusuna sahip Kemaliye’nin bölgesel kimliğinin temel bileşenleri; köklü kültürel değerleri, toplumsal tarih yapısı, doğal çevre ile uyum içinde gelişen mimari ve kentsel mekan karakteridir. Yapımından günümüze kadar geçirmiş olduğu evrelere ait izleri üzerinde barındıran Surp Kevork Kilisesi, bölgesel kimliğin belirleyici unsurlarını karşılayan, kentsel belleğin taşıyıcısı konumundaki en önemli yapıdır. Anadolu kiliseleri tipolojisine uygun olarak kagir, kubbeli ve sütunsuz olarak 1874-76 yılları arasında inşa edilmiştir. Klise, 1915 sonrasında halı üretim merkezi olarak kullanımı ve bu fonksiyondan dolayı yapısal eklere maruz kalmıştır. Ermeni kültürel geneklerinin ve sonrasında yerel halkın üretim merkezi olarak çok katmanlı kültürel birikim, kentsel bellek, kültürel ve tarihsel değerlerimizin taşıyıcısı ve kentin bilincini sağlayan bir unsur olarak, yerleşimin sürekliliğin sağlanabilmesi için başvurulması gereken bir kaynaktır. Yerleşim bütününe ait envanterin yerinde sergilenmesi söz konusu ilişkinin anlaşılabilmesi için önemlidir.... ihtiyaç duyulmaktadır.