Batıyaka

Atölye Kolektif - Batıyaka

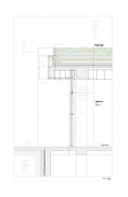
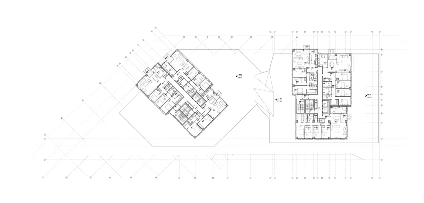
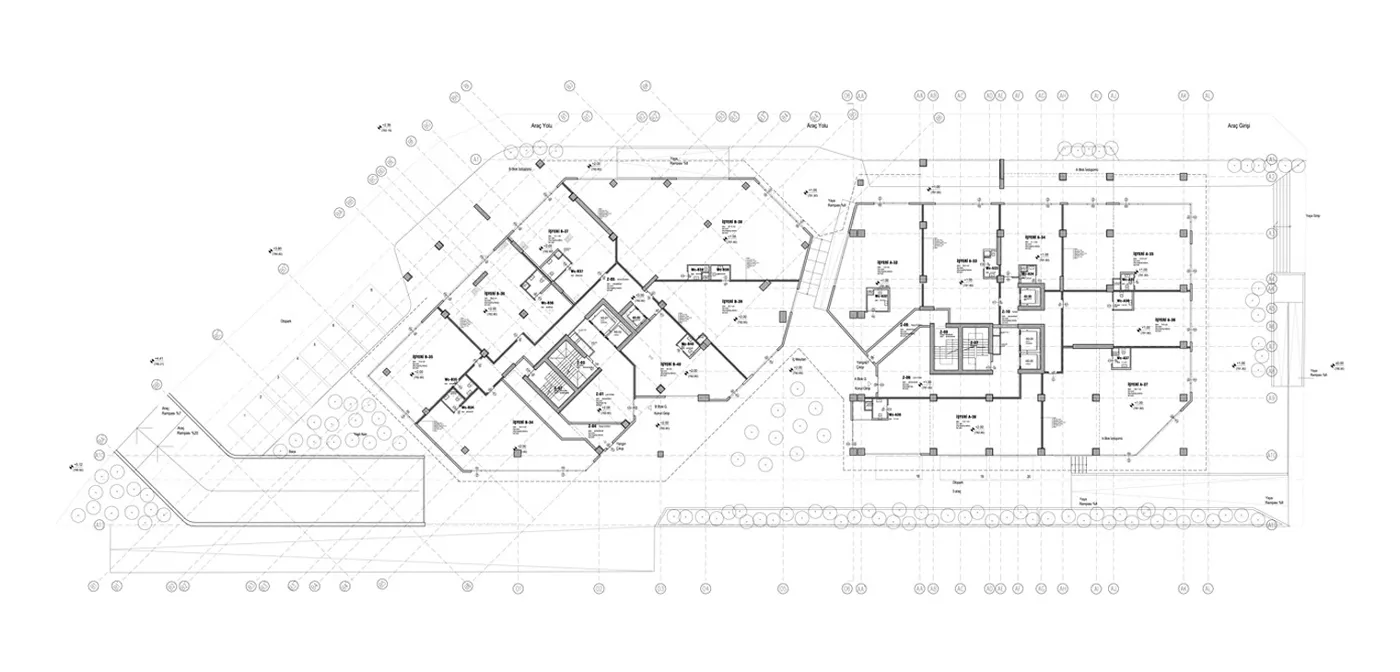
Karma kullanım fonksiyonuna sahip BATIYAKA, Bolu’nun kentsel gelişim aksı olan batı bölgesinde 5 dönümlük bir arsa üzerinde planlanmıştır. Proje alanına şehrin ana ulaşım arterleri üzerinden (Eski İstanbul Caddesi, E-5 Karayolu ve Anadolu Otoyolu-Batı Bolu Girişi) erişim mümkündür. Yapı programı temel olarak ticari birimler ve konut bloklarından oluşmakta olup; toplam 20.545 m2lik bir alana sahiptir.  Hafif eğimli bir arsa üzerine oturan yapının zemin plağı kademelendirilmiş, bu sayede kamusal ve yarı özel kullanımlar için gereken açık alan düzenlemeleri çözümlenmiştir. Konut girişleri ticari birimlerden bir “iç meydan” ile ayrıştırılarak özelleştirilmiştir. Konut blokları ticari birimlerin üst örtüsünü oluşturan ve bir peyzaj alanı olarak tasarlanan yeşil teras üzerinde yükselir. Blokların birbiri ile ilişkisi manzara ve yön faktörleri dikkate alınarak kurgulanmıştır. 9 ve 11 katlı iki bloktan oluşan konut sisteminde 18 farklı tipte toplam 60 daire bulunmaktadır.